ID CP2625823

Apartament cu 3 camere în Florești, zona Someșului.

ID CP2625823

115,000 €

Apartament cu 3 camere de vânzare
Muzeul Apei, Floresti
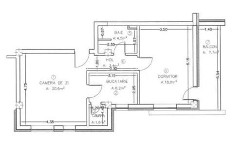
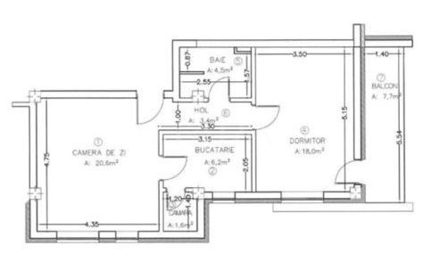
55 mp
2024

Ești în căutarea unui loc pe care să-l numești „acasă”? Avem noi ceva special pentru tine! Un apartament cochet cu 3 camere, situat într-un bloc nou, la doar 5 minute de Vivo – aproape de tot ce contează!

Compartimentare ideală:

2 dormitoare confortabile

Living generos cu bucătărie open space – locul perfect pentru povești și popcorn

O baie modernă

Un balcon spațios de 7-8 mp – ideal pentru cafeaua de dimineață sau pentru o mică grădină urbană

Se vinde semifinisat, ceea ce înseamnă că ai mână liberă să-l personalizezi exact cum îți dorești! Lasă-ți creativitatea să zburde și fă-ți casa visurilor tale!

Parcarea este inclusă, iar prețul afișat conține TVA – fără surprize neplăcute!

Nu lăsa această oportunitate să-ți scape printre degete! Hai să-l vezi înainte să fie prea târziu!

Citește mai mult

  • Tip apartament
    Apartament
  • Compartimentare
    Semidecomandat
  • Număr camere
    3
  • Dormitoare
    2
  • Număr bucătării
    1
  • Număr băi
    1
  • Etaj
    2
  • Suprafață utilă
    55 mp
  • Suprafață construită
    63 mp
  • Disponibilitate
    Imediat
  • Confort
    1
  • Stare interior
    Semifinisat
  • Număr balcoane
    1
  • Număr locuri parcare
    1
  • Imobil
    Bloc de apart.
  • Stadiu construcție
    Finalizată
  • An construcție
    2024
  • Construcție nouă
    Da
  • Tip construcție
    Cărămidă
  • Număr etaje clădire
    2

Facilități

Apă
Apometre
Bucătărie deschisă
Canalizare
Centrală proprie
Contor electric
Contor gaz
Curent
Gaz
Geamuri termopan
Iluminat stradal
Încălzire prin pardoseală
Interfon
Internet
Izolație exterioară
Mijloace de transport în comun
Parcare deschisă
Străzi asfaltate
Străzi betonate
Ușă intrare metal
Elisabeta Rus - TARA IMOBILIARE
Elisabeta Rus
Consilier Imobiliar

0743 600 500


Solicită chiar acum o vizionare
Nume
Telefon
Email
Sună acum Solicită vizionare
Necesare:

Site-ul nu poate funcționa corect fără aceste cookie-uri. Vezi cookie-urile

Statistică:

Strângem statistici anonime despre voi, vizitatorii unici, pentru a vă îmbunătăți experiența dumneavoastră. Vezi cookie-urile

Marketing:

Pentru a ne promova mai eficient serviciile noastre, folosim cookies pentru a vă identifica și a vă oferi proprietăți și servicii personalizate. Vezi cookie-urile

Acest site folosește cookies, află detalii. Alege ce tipuri de cookies dorești să permitem: